Facebook
Laura Mourão
Paisagismo, Ecologia e Restauração Jardins – Burle Marx
(31) 9974-5914 - (31) 2520-1791
Início
Projetos
Áreas Públicas
Casa do Baile – Pampulha
Congonha
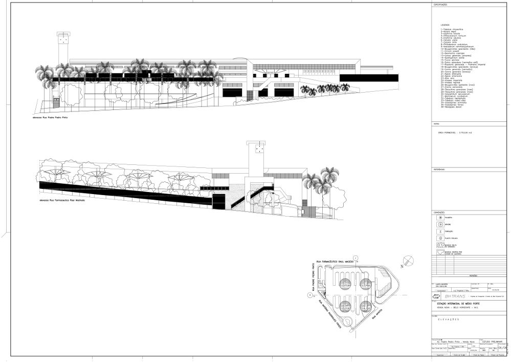
Estacao Intermodal-BHTRANS
Igrejinha da Pampulha
Museu de Arte da Pampulha
Comercial
Pousada Campos da Serra
Restaurante Aurora
Condomínios
Alphaville
Condomínio Morro do Chapéu
Fazenda da Serra
Villa Del Rey
Edificios
Beau Rivage
Lolita Guimaraes
Orizzonte
Sevilha
Fazendas
Chacrinha
Fazenda Histórica do Ciclo do Café
Maravilha
Hotéis
Grande Hotel de Araxa – Parque do Barreiro
Residências
Estância das Amendoeiras
Fernando Valle
Giambatista Coscarelli – Vila Campestre
Marcelo Machado
Orizzonte – Caparaó
Ralph Camargo
Sandro Coscarelli – Condomínio Villa Del Rey
Sevilha – Caparaó
Vanderley Marins
Sítios
Pedra Negra
Sítio Pedra Azul
Publicações
Revista Encontro Decor – Março 2008
Revista Encontro Decor – Nov 2006
Revista Estilo Minas 6 Edição
Revista Obras Online Set 2007
Revista Viver Casa Ed.3
Revista Viver Casa N.1 2010
Revista Casa Vogue – Fazenda Chacrinha
Serviços
Burle Marx
Cartas Roberto Burle Marx
A Paisagista
Contato
Estacao Intermodal-BHTRANS
Lista de Links
ABAP – Associação Brasileira de Arquitetos Paisagistas
CR Info
IPHAN
Museu de Minas e Metal
Roberto Burle Marx